Wistaston Cottage

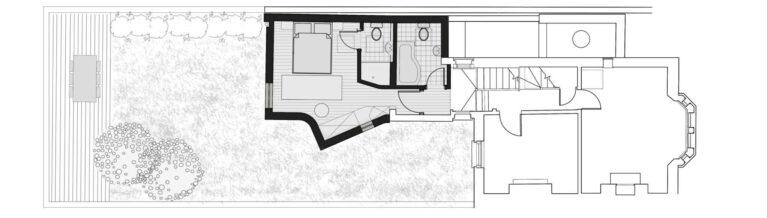
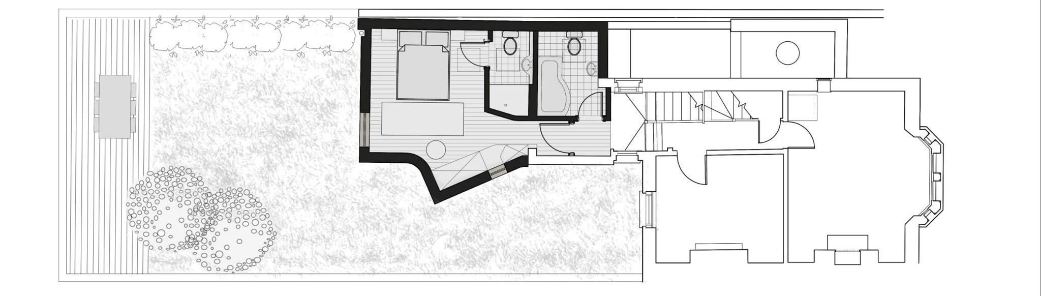
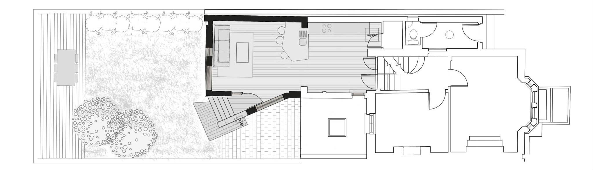
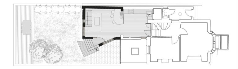
A two-storey extension was added to a Gothic Revival house in Roehampton, replacing a cold conservatory with a lightweight timber structure. The new extension reuses the original conservatory plinth, reducing both cost and environmental impact.

The plan follows the footprint of the plinth, with the exception of a splayed bay supported by a single post that gives access to the garden. This post continues upward to support a bird bath, positioned so it can be seen from the dining table.

At the request of the Design and Conservation Officer, the white-oiled Siberian larch cladding was laid horizontally. The curved splay was achieved using traditional steam-bending techniques from boat building. The extension provides a dining and living space at ground level, with a bedroom suite above.

The form responds to the setting: the broken roof ridge echoes the hipped gable of the neighbouring French Gothic house and the nearby church, while the curve in plan reflects the arched windows on the front elevation.

Structural Engineer: Howard Cavanna

FEATURED IN
FEATURED IN
FEATURED IN
FEATURED IN
FEATURED IN
FEATURED IN
FEATURED IN